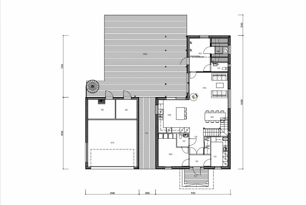
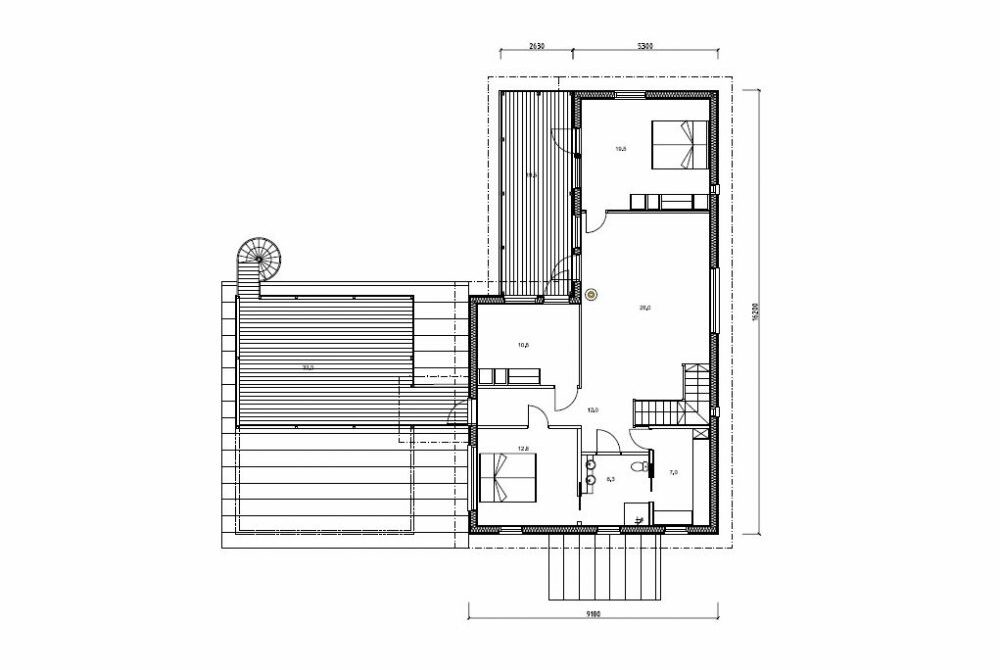
ELH-288
Einfamilienhäuser
EG
118 m²
OG
114 m²
EG+OG durch außenmaße
288 m²
Terrasse/Balkone
178 m²
Gesamtfläche
288 m²
Bilder zum Vergrößern anklicken. Hier finden Sie unsere Broschüre.
Was denken Sie?
Haben Sie Interesse an diesem Modell? Möchten Sie weitere Informationen über das wissen? Teilen Sie uns Ihre Wünsche
Wir sind die Meister der Änderungen
Wenn dies nahe genug ist, dass die Sie suchen, bitte sagen Sie uns Ihre Hoffnung. Wir werden eine Lösung finden.











