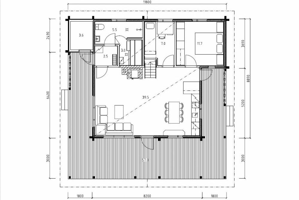
ELH-87, Kesätunturi
Maisons de vacances
RDC
84 m²
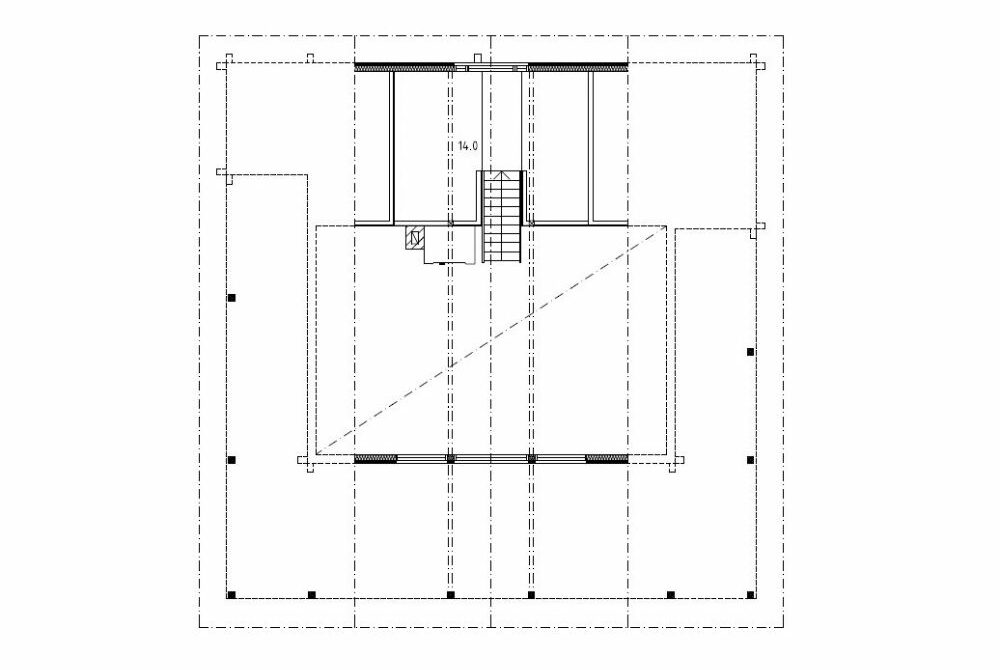
ETAGE
14 m²
Surface chaude totale
87 m²
Terrasse/Balcons
57 m²
Superficie totale
155 m²
Cliquez sur l'image pour l'agrandir. Vous trouverez ici notre brochure.
Qu'en pensez-vous ?
Ce modèle vous intéresse ? Vous souhaitez obtenir des informations plus détaillées à son sujet ? Faites-nous part de vos souhaits.
Nous sommes les maîtres des modifications
Si cela se rapproche suffisamment de ce que vous recherchez, n'hésitez pas à nous faire part de votre vision. Nous trouverons une solution.











